Alapterület: 210 m²
Ingatlan állapota: jó állapotú
Építés éve: 1960-as évek
Légkondicionáló: van
Emelet: földszint
Eladó Szolgáltatóház Debrecen Szabadságtelepen!
Debrecen frekventált, családi házas övezetében, a Szabadságtelepen eladó egy utcafronti szolgáltatóház a hozzá tartozó telekrésszel!
Az ingatlan közintézmények, kereskedelmi – és szolgáltató ingatlanok szomszédságában helyezkedik el. A Létai út főleg átmenő forgalmat bonyolító lakóutca. Bevásárlóközpont, hipermarket, piac kissé távolabb található. Infrastrukturális ellátottsága, tömegközlekedési kapcsolata jó.
Az értékesítendő ingatlan egy 2001 m²-es telken van, amely osztatlan, közös tulajdon. Az eladó a 2001 m²-es teleknek 47/100-ad arányban tulajdonosa. Ez az utcafronton elhelyezkedő szolgáltatóházat és a hozzá tartozó telekrészt (a szolgáltató ház alatti telek + parkoló) tartalmazza.
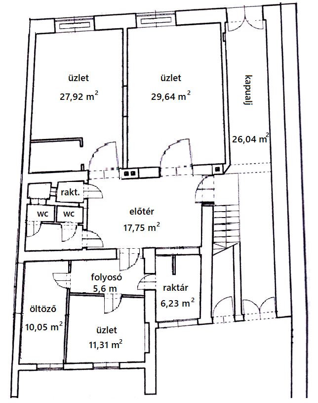
Az épület az 1960-as években épült, földszintes, hagyományos szerkezetű, vb vázas, tégla kitöltő falazatú, lapostetős szolgáltatóház, melyben 3 db üzlethelyiség van kialakítva. A középső részen nagy forgalmat bonyolító, a lakosság körében népszerű, női-férfi fodrászat, pedikűr és kozmetika, baloldalán kárpitos, a jobboldalán TV-szerelő műhely található.
A kárpitos műhely karbantartott, a fodrászat felújított, az TV-szerelő műhely felújítandó állapotú. Funkcionális kialakítása és alaprajzi elrendezése lehetővé teszi, hogy kisebb átalakítással más célra is jól hasznosítható legyen. Utcai kirakata és nagy üvegfelülete biztosítja a jó láthatóságot és vonzó megjelenést.
Ideális választás befektetőknek, vállalkozóknak vagy saját üzleti célra!
Ne hagyja ki ezt a remek lehetőséget!
Eladási ár: 160 000 000 Ft
Ingatlanközvetítők, ügynökségek segítségét nem kérjük.
Vételi ajánlatot kizárólag írásban kérünk benyújtani a Debreceni Fodrász Szövetkezet v.a.- mint eladó részére:
– 4001 Debrecen Pf. 168. vagy
– az info@dfodrasz.hu email címen
Az eladó több hasonló ajánlat esetén felhívhatja az ajánlattevőket a vételi ajánlatban megjelölt ár emelésére.
Az eladó bármikor jogosult a vételi ajánlatokat elutasítani.




